物件詳細情報
| 交通 |
九州新幹線 / 新鳥栖駅 徒歩26000m |
| その他交通 |
- |
| 所在地 |
佐賀県鳥栖市宿町 |
| 物件種目 |
新築売戸建住宅 |
| 価格 |
3,999万円 |
借地期間・地代(月額) |
-(-) |
| 権利金 |
- |
敷金/保証金 |
-/- |
| 維持費等 |
- |
その他一時金 |
- |
| 設備 |
カウンターキッチン システムキッチン 全居室収納 クローゼット 床下収納 モニタ付インターホン シャッター雨戸 複層ガラス 食器洗浄乾燥機 食器乾燥機 浄水器 IHクッキングヒーター 浴室乾燥機 オートバス 追焚機能 シャワー付洗面化粧台 全居室フローリング 上水道 下水道 電気 温水洗浄便座 トイレ2ヶ所 浴室に窓あり |
| 瑕疵保証 |
- |
| 瑕疵保険 |
- |
| 評価・証明書 |
- |
| 備考 |
総戸数:2戸 おススメその1 パノラマ画像♪ HPにて360度パノラマ画像をご覧いただけます。
おススメその2 住宅ローンのご相談♪ 購入時または購 入後に掛かる費用まで、ご不明点は しっかりサポート致しますのでご安心ください。
おススメその3 全国展開700店舗のネットワーク! 新築も中古もお客様のご希望のエリア、予算に合わせてお探し致します♪
|
| エネルギー消費性能 |
- |
断熱性能 |
- |
| 目安光熱費 |
- |
|
|
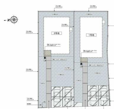
| 建物名 |
鳥栖市宿町 1号棟 DSK |
| 間取り(内訳) |
4LDK |
建物面積 |
112.30㎡ |
| 土地面積 |
201.39㎡ |
私道負担面積 |
なし |
| 築年月 |
2026年3月 |
階建 |
2階建 |
| 駐車場 |
有 無料 |
建物構造 |
木造 |
| 土地権利 |
所有権 |
都市計画 |
市街化区域 |
| 用途地域 |
1種低層 |
接道状況 |
西8.9m |
| 建ぺい率 |
50% |
容積率 |
80% |
| 地目 |
宅地 |
地勢 |
- |
| 国土法届出 |
- |
セットバック |
- |
| 建築確認番号 |
第12504480号 |
| 現況 |
建築中 |
引渡可能時期 |
期日指定 2026年03月 |
| 物件番号 |
1031879893 |
管理番号 |
4439062 |
| 情報公開日 |
2025/11/10 |
次回更新予定日 |
2025/12/29 |
※「-」と表示されている項目については、情報提供会社にご確認ください。
情報提供会社
ハウスドゥ 鳥栖 (株)育商会
- 交通:
- JR鹿児島本線/鳥栖 徒歩10分
- 住所:
- 佐賀県鳥栖市元町1246-3
- TEL:
- 0942-50-5735
- FAX:
- 0942-50-5715
- 所属団体など:
| (公社)全日本不動産協会会員 |
| (一社)九州不動産公正取引協議会加盟 |
- 取引態様:
- 媒介
- 免許番号:
- 佐賀県知事免許(2)第2561号
メールでお問い合わせ